柏の葉キャンパス駅徒歩圏(27分)に、新生活を彩る4LDK邸宅誕生。全2邸、ゆとりある敷地と建物で、家族の笑顔が集まる住まいを実現。子育てに適した環境も魅力です
- 5,399万円~5,599万円

- 交 通つくばエクスプレス「柏の葉キャンパス」駅 徒歩27分~27分
- 所在地柏市松葉町6丁目
- 土地面積112.39m²~118.92m²
- 建物面積105.57m²~106.24m²
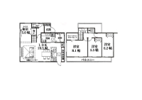
- 間 取4LDK~4LDK
担当スタッフ:鈴木 忠明玄関には土間収納、居室にはウォークインクローゼットなど収納に充実した間取りになっています。
1階LDKは家族が増えても安心、仕切ることで間取りを変えることができます。