- トップ
- 朝霞市仲町3期
新築一戸建て

朝霞市仲町3期
情報更新日:2026/04/14 次回更新予定日:2026/04/28 取引条件有効期限:2026/04/28
所在地埼玉県朝霞市仲町1丁目[周辺地図]
交 通東武東上線「朝霞」駅徒歩6分




担当スタッフより

- 鈴木 忠明
- 東武東上線朝霞駅から徒歩6分!周辺には商業施設も充実していて生活にはもちろん、学校も徒歩圏内と子育てにも最適な環境です。
各棟情報
物件詳細情報
物件No.20000450664
| 所在地 | 埼玉県朝霞市仲町1丁目 | ||
|---|---|---|---|
| 交通 | 東武東上線「朝霞」駅徒歩6分 | ||
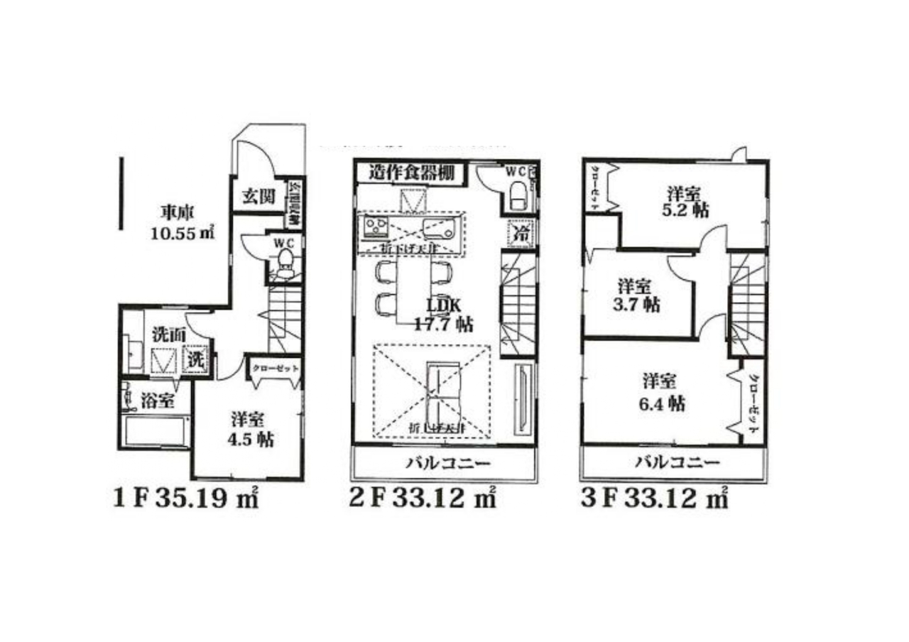
| 間取 | 4LDK~4LDK (洋室4.5帖、LDK16.6帖、洋室5.3帖、洋室3.7帖、洋室6.3帖) | ||
| 土地面積 | 60.08m² ~ 60.08m² | ||
| 建物面積 | 100.39m² ~ 101.43m² | ||
| 販売戸数 | 3戸 | 総戸数 | 全4戸 |
| 構造・規模 | 木造 3階建て | 築年・入居 | 2026年4月 |
| 建物現況 | 建築中 | 建築確認番号 | 第SJK-KX25514690号、他 |
| 駐車スペース | 1台(車庫) | 引渡時期 | 相談 |
| 地目 | 宅地 | 用途地域 | 第一種住居地域 |
| 建ぺい率 | 60% | 容積率 | 200% |
| 都市計画 | 市街化区域 | 権利種類 | 所有権 |
| 接道 | 北東側4M公道に接道 | 小学校区 | 朝霞市立朝霞第六小学校(720m) |
| 中学校区 | 朝霞市立朝霞第四中学校(1520m) | 取引態様 | 媒介 |
| 設備 | 公営水道、本下水、都市ガス | ||
こだわり項目
LDK15帖以上2面以上バルコニー食器洗浄機浄水器トイレ2ヶ所温水洗浄便座節水型トイレシャワー付洗面台シューズインクローゼットスマートキー小学校800m以内スーパー400m以内コンビニ400m以内
- ※価格は物件の代金総額を表示しており、消費税が課税される場合は税込み価格です。(1,000円未満は切り上げ。)
税率は引き渡し時期により異なりますので、各物件の詳細につきましてはお問い合わせください。 - ※敷地権利が借地権のものは価格に権利金を含みます。
- ※制作中に内容が変更される場合もありますので、あらかじめご了承ください。
- ※購入の前には物件内容や契約条件についてご自身で十分な確認をしていただくようにお願いいたします。
- ※完成予想図はいずれも外構、植栽、外観等実際のものとは多少異なることがあります。
- ※CG合成の画像の場合、実際とは多少異なる場合があります。
周辺地図
周辺施設一覧
- ショッピングセンター
- スーパー
- コンビニ
- ドラッグストア
- ホームセンター
- 飲食店
- その他店舗
- 商店街
- 大学
- 専門学校
- 高校・高専
- 中学校
- 小学校
- 保育園
- 幼稚園
- 公民館・児童館
- 病院
- 郵便局
- 役所
- 図書館
- 金融機関
- 警察・消防
- 趣味・娯楽施設
- 公園・運動施設
- 周辺の街並み
- 駅
- その他
お問い合せ先
- 株式会社平成エンタープライズ
- お電話でのお問い合わせは
048-260-6686「ホームページを見た」とお問い合わせください - 埼玉県志木市本町5-22-26 HEGビル
- 免許番号:埼玉県知事(1)第24583号
- 許認可番号:観光庁長官登録旅行業第2095号 一般貸切 No.関自旅1第523号 一般乗合 No.関自旅1第776号 一般乗用 No.関自旅2第1571号
- トップ
- 朝霞市仲町3期












